Cette fois-ci, ce n’est pas un bien d’exception que nous souhaitons mettre en avant mais une villa plus modeste faisant partie des « bonnes affaires ». Elle est située à quelques minutes au Sud de CARCASSONNE, en fond d’impasse d’un petit lotissement privé et en bordure du vieux village de LAVALETTE. Environ 1500 habitants peuplent cette commune qui foule les pieds de la Malepère.
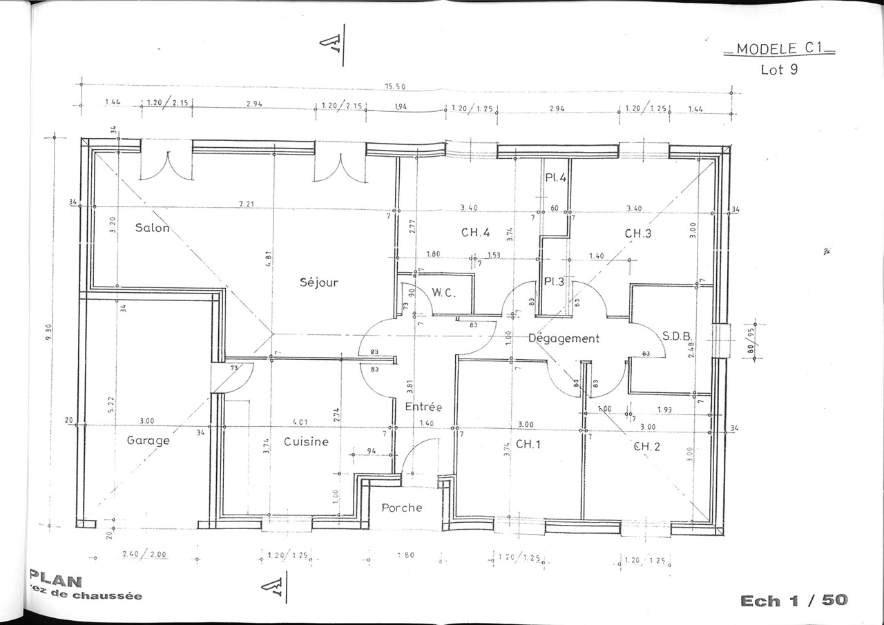
Cette villa a été construite en 2001, par des artisans, sur une parcelle de 780 m² close de murs, haies et grillage. La construction est sur vide-sanitaire, en briques doublées de contre-cloisons briques plâtrées à la main. Toutes les cloisons intérieures sont également en briques plâtrées ainsi que l’ensemble des plafonds. La toiture est de type 4 pentes sur charpente de type fermette et isolée. Les fenêtres sont cintrées et équipées de volets bois et menuiseries PVC double vitrage. Tous les sols sont carrelés ainsi que le garage. Les chéneaux sont en Zinc par-devant une rangée de génoise qui habille le débordement de toiture. Le chauffage est de type central, au gaz de ville avec chaudière murale à ventouse remplacée récemment. Un portail en fer forgé ouvre sur l’allée en gravillonnée qui mène au garage équipé d’un portail basculant. L’entrée se fait dans un hall de 4.07 m² qui distribue une cuisine indépendante aménagée (meubles, plaque-feux) de 14.06 m² communiquant au garage de 15.66 m². Le séjour jouxte la cuisine (décloisonnement possible) et offre une surface de 29.53 m² avec 2 portes fenêtres donnant sur une grande terrasse. Le coin nuit, distribué par un large couloir, regroupe une salle de bains de 4.79 m² avec deux vasques et une baignoire, un wc indépendant et 4 chambres de 9.74 m², 11.22 m², 12 m² et 12.34 m² dont les 2 plus grandes sont équipées de penderie de 1.10 m².
L’ensemble est en très bon état, l’endroit calme et sans vis à vis, les enfants peuvent jouer dans la rue, aller à l’épicerie ou au stade à pied, le village est desservi par les transports en communs et se situe à seulement 5 minutes de la grande zone commerciale de CARCASSONNE.
Vous souhaitez investir dans une valeur sûre ? Cette villa est à vendre pour seulement 219 000 € ! Qui sera le futur propriétaire ?
Cliquez pour agrandir le plan
Voir la fiche détaillée de la villa sur notre site en cliquant ici.






